
Wil je wonen in een pas opgeleverde woning in een rijksmonumentale boerderij in het Reestdal?
Stichting Landgoed Bosch en Vaart zoekt een huurder voor de rijks monumentale boerderij het Evesingehus in Eesinge (gemeente Meppel), Hoogeveensche weg 26. De woning is onlangs opgeleverd na een intensieve restauratie en herbestemming. Prachtige, energiezuinige, comfortabele schuurwoning van ca 200 m2.
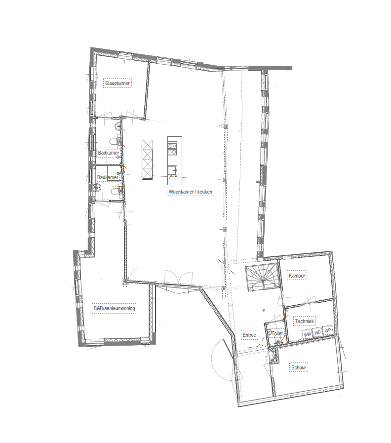
De Woning
Authentieke schuurwoning van circa 200 m², gevestigd in het voormalige achterhuis van de boerderij waar de karakteristieke gebintconstructie nog steeds zichtbaar is in de grote open leefruimte, prachtig gecombineerd met modern comfort.
Respect voor historie: De woning is met zorg gerestaureerd, met behoud van de gebintconstructie, de originele ramen en voorzetramen met HR++ glas, baanderdeuren, luiken en andere authentieke details. De monumentale uitstraling is intact gebleven maar gecombineerd met modern comfort en duurzame oplossingen.
Indeling
Begane grond: Ruime entree naar schuur (12 m²) en hal. In de hal bevindt zich de trap naar de verdieping, een deur naar de bijkeuken (3.5 m²), kantoor/slaapkamer (6,98 m²), toilet en woonkamer (99 m²). De zeer ruime woonkamer waarin de gebintconstructie zichtbaar is gebleven heeft een moderne open keuken. Op de begane grond bevindt zich verder een ruime slaapkamer (11,4 m²) met en-suite badkamer (3,8 m²).
Op de eerste verdieping bevindt zich een ruime slaapkamer (16.8 m²) met badkamer (5.2 m²).
De aankleding en beplanting van het erf zijn in stijl met de omgeving gehouden, waardoor de oorspronkelijke sfeer bewaard is gebleven.
HR++ glas en andere duurzame ingrepen zorgen voor een comfortabel en energiezuinig woonklimaat. De woning heeft Energielabel A.
Niet in de huurprijs inbegrepen is het flexibel gastenverblijf/aanleunwoning van circa 35 m², met eigen entree, ideaal voor gasten, inwonende familie of als Bed & Breakfast. Denk hierbij aan meer generatie wonen, passend bij de historische ‘ouderkamer’-traditie van boerderijen in de omgeving. In overleg kan dit zelfstandige gastenverblijf uitmaken van de huurovereenkomst. De huurprijs van de woning inclusief het gastenverblijf zal in overleg deel uit maken van de huurovereenkomst.
De mogelijkheden
- Meerpersoonshuishouden: perfect voor een stel, gezin met kinderen, of een combinatie van wonen en werken.
- Meer generatie wonen: ideaal voor families die dicht bij elkaar willen wonen met behoud van privacy.
- Bed & Breakfast: verhuur het gastenverblijf en deel de schoonheid van het Reestdal.
De voorwaarden
Huurprijs: € 2.595,- per maand excl.
De huurprijs betreft de ruime schuurwoning en is bepaald door het puntenaantal volgens het woningwaarderingsstelsel (WWS) en berekend met behulp van de huurprijscheck, inclusief 35% toeslag omdat het een Rijksmonument betreft (de puntentelling zal worden toegevoegd bij het huurcontract).
Beschikbaar: Per direct.
Voorhuis: Het voorhuis heeft een museale functie en zal gebruikt worden als vergaderlocatie, valt buiten de huurovereenkomst.
Onderstaande plattegronden betreffen de benedenverdieping inclusief de ‘aanleunwoning/B&B’ die tevens een eigen ingang aan de achterkant van de woning heeft zodat optimale privacy geboden wordt en een plattegrond van de bovenverdieping waar zich een slaapkamer en badkamer bevindt.


Aanmelden als gegadigde
Bent u enthousiast geworden? Meld u dan uiterlijk 8 december 2025 aan als gegadigde via info@landgoedboschenvaart.nl onder vermelding van ‘huur Evesingehus’.
Bij de aanmelding dient u uw contactgegevens en uw huishoudenssamenstelling te vermelden. Ook vragen wij u een motivatie mee te sturen, waarin u aangeeft waarom u voor deze woning in aanmerking wilt komen. Aanmeldingen die niet volledig zijn, worden niet in behandeling genomen.
De stichting behoudt zich het recht voor om de woning te gunnen aan de meest geschikte kandidaat.
Indien u eerst meer informatie wilt ontvangen, neem dan contact op met de heer Pieter Battjes (voorzitter Stichting Bosch en Vaart), via telefoonnummer 06 30537557 of via secretariaat@landgoedboschenvaart.nl
Procedure
Onze stichting hecht veel waarde aan een transparante procedure. Als u zich aanmeldt als gegadigde, ontvangt u van ons een ontvangstbevestiging per mail. Indien er zich veel gegadigden aanmelden, wordt een voorselectie uitgevoerd, op basis van de toegestuurde informatie en motivatie. Bij de selectie houden we onder meer rekening met de huishoudensamenstelling en de motivatie om hier te willen wonen. Mogelijk worden er nog andere criteria gehanteerd, waarvoor aanvullende informatie kan worden opgevraagd. Eventueel vindt er een loting plaats. Van de uitkomst van de voorselectie wordt u via de mail op de hoogte gebracht.
Vervolgens wordt er een kijkdag georganiseerd. Tijdens de kijkdag heeft u de mogelijkheid om het pand en het erf te bekijken. U ontvangt per mail een uitnodiging van ons voor dit kijkmoment. Na de kijkdag wordt eventueel opnieuw een voorselectie uitgevoerd. Hierover wordt per mail gecommuniceerd. Vervolgens vinden er gesprekken plaats met de overgebleven kandidaat-huurders. Indien nodig kan u gevraagd worden nadere gegevens aan te leveren voorafgaand aan dit gesprek. Op basis van de gesprekken wordt uiteindelijk door Stichting Bosch en Vaart een keuze gemaakt. Met de gekozen huurder worden vervolgens nadere afspraken gemaakt. Ten slotte wordt de huurovereenkomst opgemaakt en vindt de sleuteloverdracht plaats.
Nadere informatie m.b.t. inschrijving
Stichting Bosch en Vaart stelt panden open voor verhuur op het moment dat er aanbod is. Hiervan wordt onder andere op de website en via sociale media melding gemaakt. Gegadigden kunnen zich vervolgens voor dit pand aanmelden. U kunt zich dus niet laten inschrijven als woningzoekende in algemene zin, maar alleen voor deze rijks monumentale boerderij.
Stichting Bosch en Vaart behoudt zich het recht voor het pand te gunnen aan de persoon of personen die de stichting het best passend acht voor deze locatie. Er kunnen geen rechten worden ontleend aan een aanmelding voor huur.

